Paris 13

Surélévation d’un immeuble

Avec BULLE POIRIER JUSTMAN ARCHITECTES

Surface : 180m²
Lieux: Paris 13
Certification:
Livraison:
Maîtrise d’Ouvrage: Privée
Montant des travaux : 
Programme: résidentiel
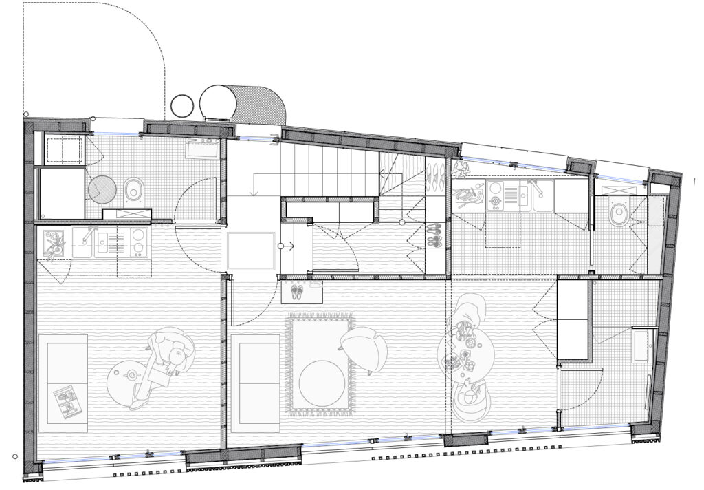
Un appartement devient maison avec sa terrasse. Des volumes généreux, un agencement fluide privilégiant lumière naturelle et vues sur le paysage urbain.

Se situant dans le 13è arrondissement de Paris entre deux immeubles de logements, respectivement de2 et 3 étages, ce bâtiment en R+2 se voit proposé une surélévation. Celle-ci sera composée d’un logement en duplex. Le 4ème étage bénéficie d’une terrasse donnant sur me coeur d’ilot.

Par sa volumétrie, la surélévation s’accorde en douceur avec les niveaux inférieurs de l’immeuble. Elle embellie l’existant et renforce l’idée de permanence dans l’évolution. Venant habiller les façades en verre, une double peau en céramique nervurée créant ainsi un jeu de verticales qui vont rythmer la façade. La perception de cette subtile double peau, voile léger et plissé, varie en fonction du temps, du moment. Ce dispositif élégant filtre à la fois la lumière et les vues.

Sur le plan constructif, l’agence a recherché et mis en œuvre des solutions bas carbone en utilisant en priorité des matériaux renouvelables (structure bois et isolation en laine de bois) ou recyclable (aciers) tout en mettant en place des solutions énergétiques performantes.